Work
About
Contact
Menu
F. Peters
Work
About
Contact
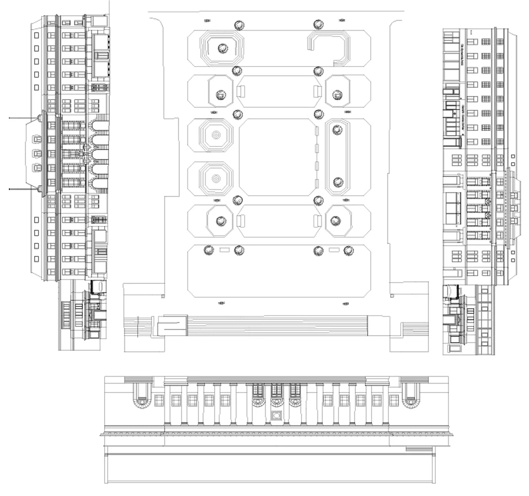
Carid Hall
2012-13: Study of Carid Hall in Dundee City.
Building location
Court elevations